Skip to content

Bat House Plans Printable

  • by

Bat House Plans Printable – Take Control with a Printables Planner – Customize Your Schedule

Simple Bat House Plans For Creating A Beneficial Home For Your Friendly Bat House Plans Printable

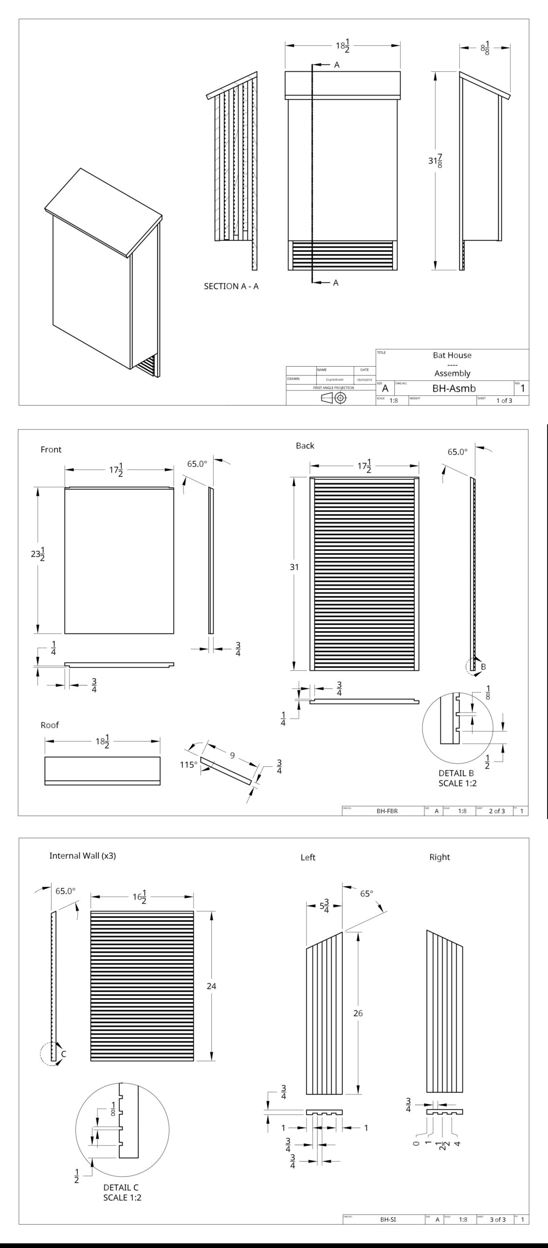
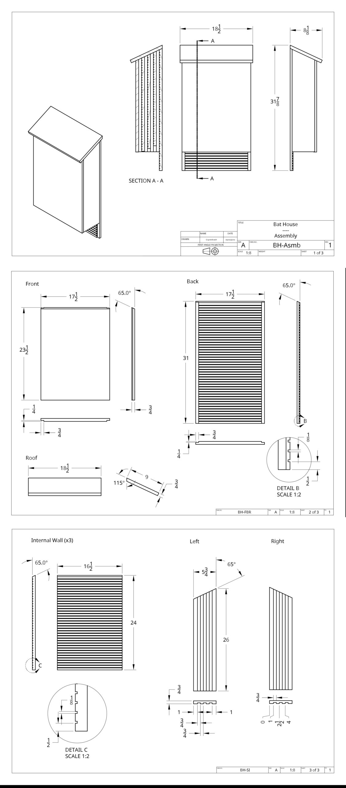
Are you looking to attract bats to your property to help control insect populations? Building a bat house is a great way to provide shelter for these beneficial creatures. By using printable bat house plans, you can easily construct a bat house that will attract bats to your yard.

Printable bat house plans provide detailed instructions on how to build a bat house, including the dimensions, materials needed, and step-by-step assembly instructions. These plans make it easy for anyone, whether you’re a seasoned DIYer or a beginner, to build a bat house that will provide a safe and cozy home for bats.

Looking for a easy and adaptable way to stay on top of your schedule? A planner printable is the perfect solution for managing your day, week, or monthly plans with ease. Whether you’re a college attendee, professional, or busy parent, Bat House Plans Printable help you stay focused, follow habits, and keep your routine on track.

Unlike traditional planners, a planning template gives you the freedom to customize layouts and print only what you need. From task organizers and meal plans to monthly calendars and productivity charts, there’s a printable for any routine.

Download and Print Bat House Plans Printable

You can quickly download planner printable from the web, many of which are free and visually appealing. They’re ideal for both people avoiding apps and analog organizers who want an efficient routine without relying on technology.

Elevate your daily success and mental clarity—search for the best printables planner today and build a planning system that works just for you. It’s time to own your schedule—one page at a time..

Diy Bat House Plans How To Build A Home For Your Furry Friends House Diy Bat House Plans How To Build A Home For Your Furry Friends House

Diy Bat House Plans How To Build A Home For Your Furry Friends House Diy Bat House Plans How To Build A Home For Your Furry Friends House

Simple Bat House Plans Printable Image To USimple Bat House Plans Printable Image To U

Diy Printable Bat House PlansDiy Printable Bat House Plans

Diy Printable Bat House PlansDiy Printable Bat House Plans

When choosing printable bat house plans, it’s important to consider the size of the bat house and the type of bats you want to attract. Different species of bats prefer different sizes and designs of bat houses, so be sure to select plans that are appropriate for the bats in your area.

Building a bat house is not only a great way to attract bats to your property, but it also helps support bat conservation efforts. Bats play a crucial role in controlling insect populations, pollinating plants, and spreading seeds, making them an important part of our ecosystem. Providing bat houses can help ensure that bats have a safe place to roost and raise their young.

With printable bat house plans, you can easily create a bat-friendly environment in your yard while also enjoying the benefits of having bats around. Whether you’re looking to control insect pests or simply enjoy watching bats swoop through the night sky, building a bat house is a rewarding and eco-friendly project.

So why not give printable bat house plans a try and build a bat house that will attract these fascinating creatures to your property? Not only will you be supporting bat conservation efforts, but you’ll also have a front-row seat to watch these amazing mammals in action.